Cor Vision Corredera RPT

Ventana corredera con Ruptura de Puente Térmico de diseño vanguardista que deja la máxima iluminación con la mínima sección vista de aluminio.
 
Elegancia de diseño que busca cubrir grandes vanos de luz con secciones vistas de perfil mínimas (desde el ocho por ciento sobre el total de la superficie del perfil).
 

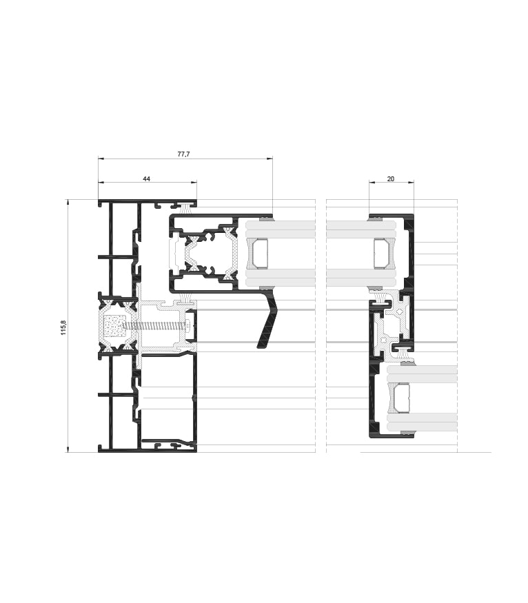
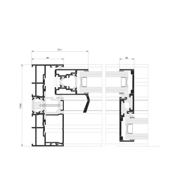
Presenta secciones vistas de nudo central de solo veinte mm, de nudo lateral de setenta y siete mm y de nudos inferior/superior de cincuenta y siete mm. Posibilidad de embutir los marcos inferiores, superiores y laterales.
 

Posibilidad de encuentros de hojas en esquina y rincón a 90º sin parteluces.
 

En su versión monocarril, de composición fijo y hoja, presenta carril escondo en la zona fija.
 

Incorpora versión GALANDAGE desarrollada para permitir una apertura integral del hueco al esconder completamente las hojas en la cámara del muro de obra. Se logra de esta forma una superficie de apertura del cien por ciento. Esta alternativa dispone de marco monocarril, bicarril y tricarril, dejando de esta forma balconeras de hasta seis hojas ocultas.
 

Presenta un género de marco reforzado para todas y cada una de las tipologías (1, dos y tres carriles) que deja agregar un carril inox que le proporciona una mayor suavidad de deslizamiento, un mayor soporte de carga en rodamiento (hasta trescientos veinte Kg/hoja) y una mayor durabilidad.
 

Sistema con procedimiento de montaje tradicional que deja desmontar la hoja en el caso de ruptura de vidrio, desperfecto del perfil de aluminio, etcétera Incorpora un cierre multipunto por falleba.

INFORMACIÓN ADICIONAL

Información adicional

Acristalamiento

30 mm

Posibilidades de apertura

90º sin parteluz, Bicarril, Corredera de 1 hoja, Corredera de 2 hojas, Corredera de 3 hojas, Corredera de 4 hojas, Corredera de 6 hojas, Galandage 1 hoja, Galandage 2 hojas, Galandage 3 hojas, Galandage 4 hojas, Monocarril, Tricarril

Marco

116 mm, 182 mm

Hoja

37 mm

Espesor perfilería puerta

1,7 mm

Longitud varilla poliamida

16 mm, 17 mm, 18 mm, 19 mm, 20 mm, 21 mm, 22 mm, 23 mm, 24 mm

Aislamiento acústico

41 dB

Acabados

Posibilidad bicolor
Lacado colores (RAL, moteados y rugosos)
Lacado imitación madera
Lacado antibacteriano
Anodizado