Puerta Millennium FR RPT

Puerta cortafuegos de aluminio con clasificación de resistencia al fuego clase EI260 da solución a las demandas de seguridad en el caso de incendio dejando, la compartimentación en ámbitos de incendio del edificio y la evacuación de los usuarios.

nbsp;
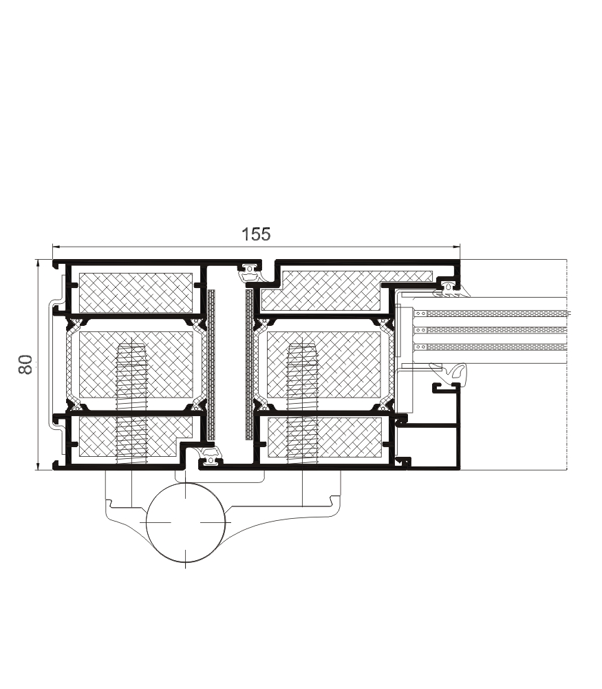
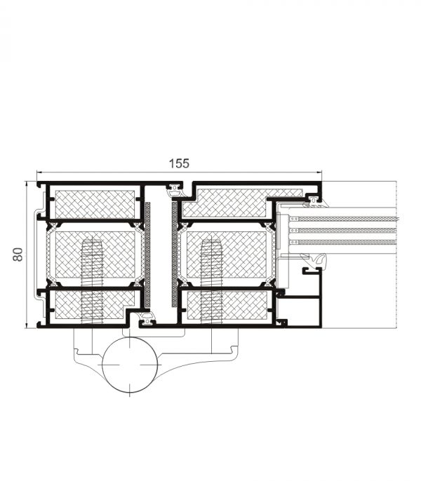
Formado por perfiles coplanarios de líneas rectas de ochenta mm. de sección, dos con dos mm. de espesor y una zona de ruptura de treinta y cinco mm, ofrece un periodo de resistencia al fuego de sesenta minutos merced a la utilización de materiales aislantes retardantes no comburentes en las cámaras del perfil, juntas intumescentes de efecto dilatador y papel insoluble en la zona del vidrio.
nbsp;
Con un valor de transmitancia de puerta desde catorce W/m²K, alcanza unas posibilidades térmicas insuperables y su gran capacidad de acristalamiento de cuarenta y ocho mm. deja asegurar un aislamiento acústico máximo.
Posibilidad de unión con fijos, integración de herrajes con función anti pánico, cierrapuertas automáticos y manillería/ bisagras homologadas para sectorización de incendios

INFORMACIÓN ADICIONAL

Información adicional

Acristalamiento

48 mm

Apertura interior

Oscilo batiente de 1 y 2 hojas

Apertura exterior

Practicable de 1 y 2 hojas

Marco

80 mm

Hoja

80 mm

Espesor perfilería puerta

2,2 mm

Longitud varilla poliamida

35 mm

Aislamiento acústico

38 dB

Acabados

Posibilidad bicolor
Lacado
Anodizado