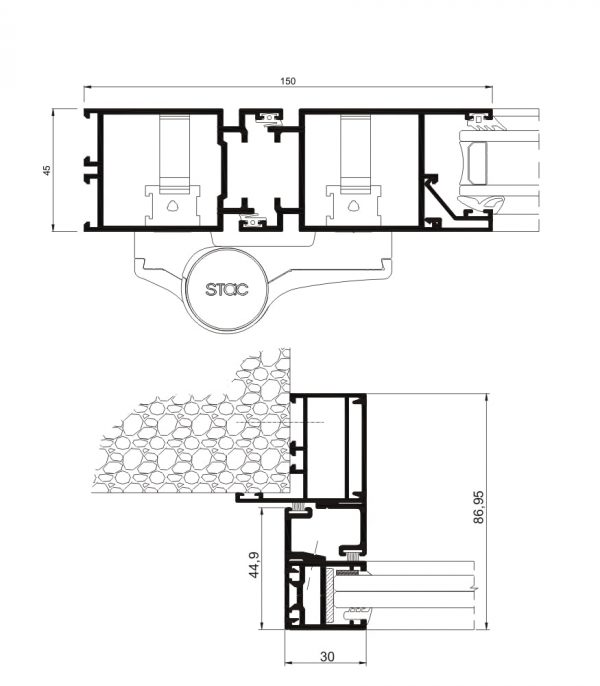
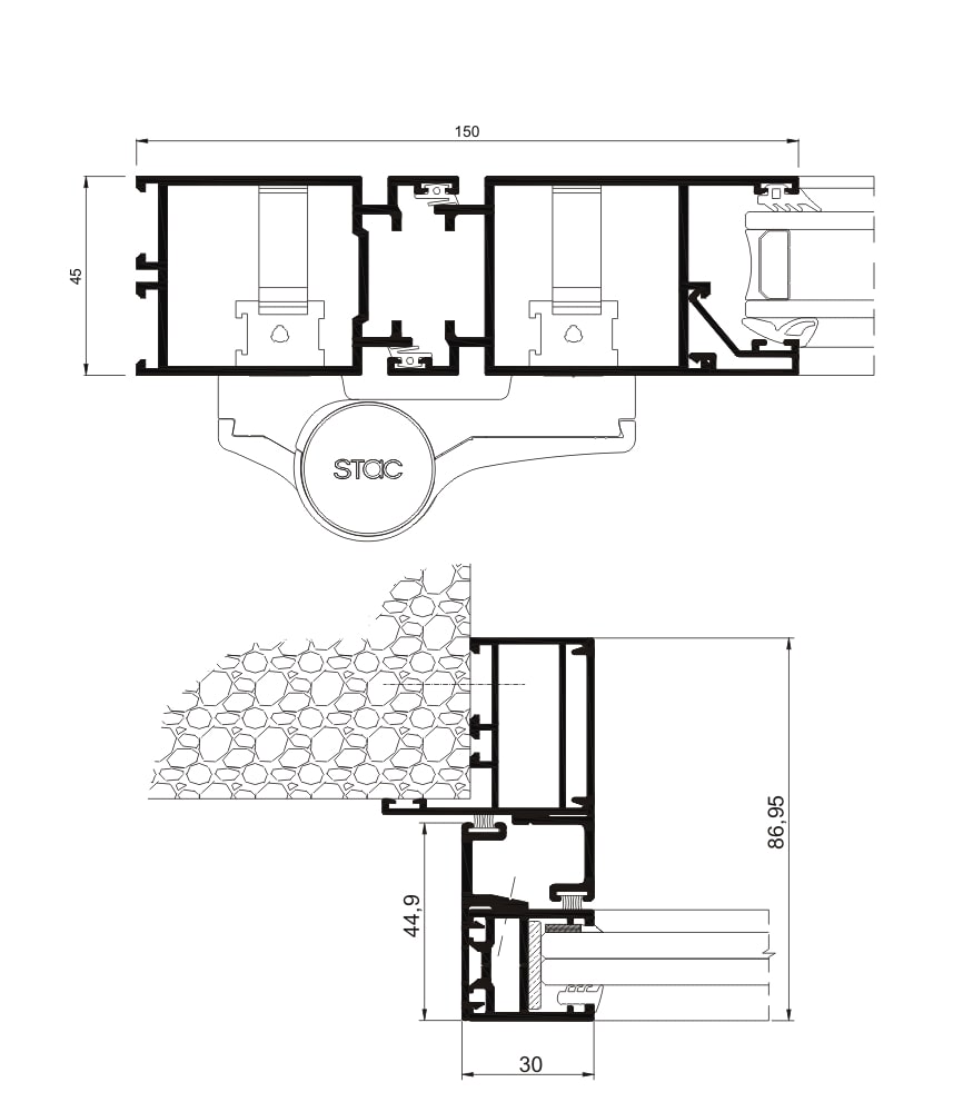
Puerta Millennium 2000

Sistema de puerta coplanaria de cuarenta y cinco mm. para locales y edificios con bisagras sobrepuestas de 2 y 3 zapas de alta resistencia capaces de aguantar hasta ciento ochenta Kg. Por hoja.

INFORMACIÓN ADICIONAL

Información adicional

Acristalamiento

30 mm

Apertura interior

Interior de 1 y 2 hojas

Apertura exterior

Exterior de 1 y 2 hojas

Espesor perfilería puerta

2,0 mm

Vaivén

1 y 2 hojas

Automática

Batiente interior, Corredera de 1 y 2 hojas, Exterior de 1 hoja

Marco

45 mm

Hoja

45 mm

Aislamiento acústico

38 dB

Acabados

Lacado / Anodizado