4600 Corredera Elevable HI RPT

Sistema de puerta de corredera elevable que presenta el mayor aislamiento térmico de toda la gama de correderas con insuperables valores de transmitancia (Uw) que van desde 0.9 (W/m2K).
 
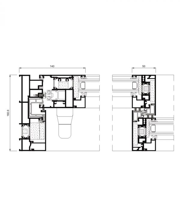
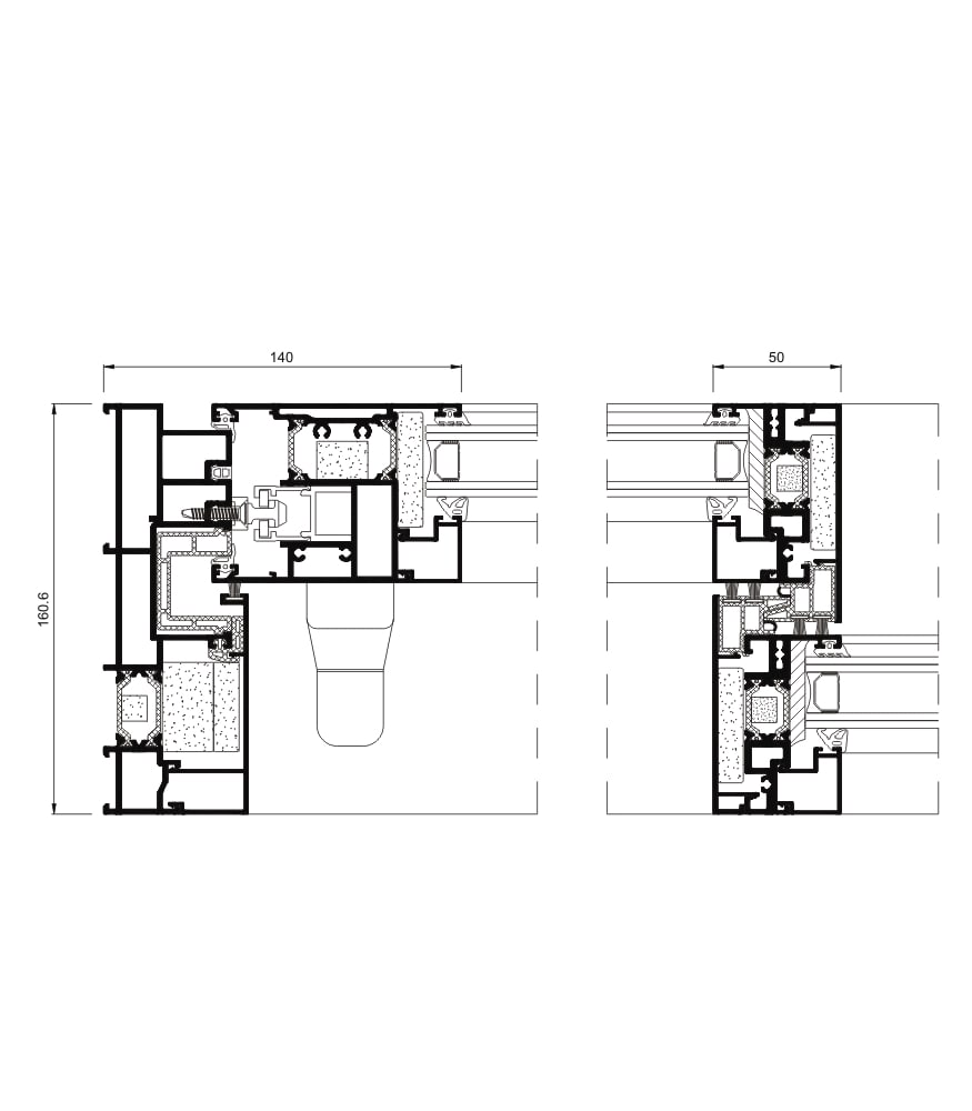
Esta máxima eficacia energética es posible merced a la perfecta combinación de una zona de ruptura de puente térmico con poliamidas de treinta y cinco y veinticuatro mm y perfiles de PE reticulado, y la enorme capacidad de acristalamiento que presentan las hojas, que dejan vidrios de hasta cincuenta y cinco mm de espesor, dando opción a instalar composiciones con doble cámara y triple vidrio para asegurar su inusual aislamiento térmico y progresar singularmente la protección frente a los estruendos que nos aporta este sistema.
 

La posibilidad de enormes dimensiones de hoja, hace de este sistema el ideal para cerrar grandes vanos, garantizando la iluminación interior sin abandonar a las máximas posibilidades térmicas y acústicas.
 

Esta corredera fundamenta su funcionamiento en un sistema en el que las hojas se montan con un mecanismo que deja la elevación de exactamente la misma en la maniobra de apertura y el descenso en la de cierre, de forma que la puerta cerrada descansa sobre juntas de estanquidad longitudinales inferiores y laterales, produciéndose su enclavamiento en cualquier situación y mejorando de este modo su estanquidad y su aislamiento acústico. Se trata por tanto de un sistema robusto en apariencia y ligero por su parte, con una apertura ultra suave y deslizamiento perfecto de hojas por un carril de acero inoxidable que evita el desgaste de la pieza.
 

Presenta un diseño actual con estética recta en hojas y junquillos.
 

Posibilidad de 2 opciones de sección vista en el nudo central, la estándar de ciento diez mm y la minimalista de tan solo cincuenta mm.

INFORMACIÓN ADICIONAL

Información adicional

Acristalamiento

55 mm

Posibilidades de apertura

1 hoja + 1 fijo, Corredera de 2 hojas, Corredera de 3 hojas, Corredera de 4 hojas, Corredera de 6 hojas, Monocarril, Tricarril

Marco

160,6 mm, Tricarril 251mm

Hoja

70 mm

Espesor perfilería puerta

2,0 mm

Longitud varilla poliamida

24 mm, 35 mm

Aislamiento acústico

43 dB

Acabados

Posibilidad bicolor
Lacado colores (RAL, moteados y rugosos)
Lacado imitación madera
Lacado antibacteriano
Anodizado