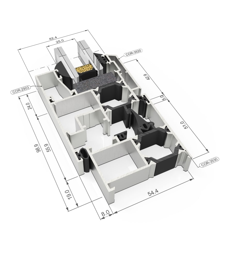
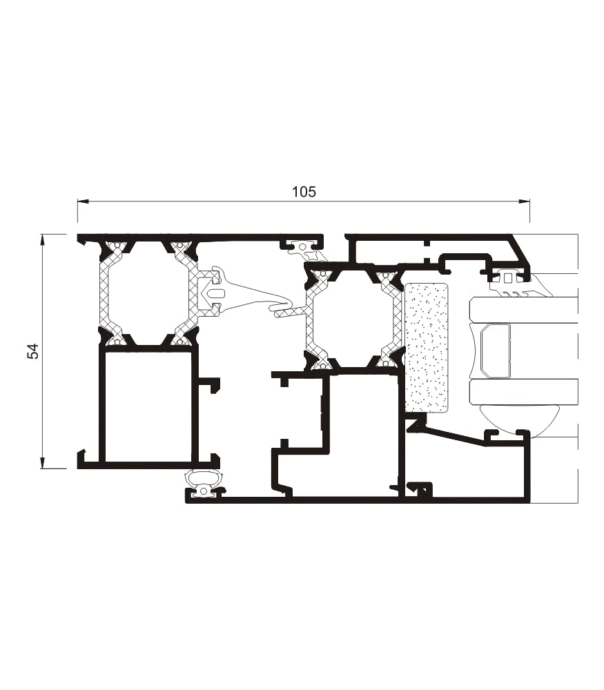
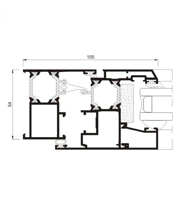
COR 3500 C16 ST RPT

Ventana de aluminio de canal dieciséis estándar de cincuenta y cuatro mm de profundidad de marco con una ruptura de puente térmico de veinticuatro mm.
 
Con una capacidad de acristalamiento de treinta y cuatro mm, alcanza unos valores de transmitancia desde doce W/m²K.

INFORMACIÓN ADICIONAL

Información adicional

Acristalamiento

32 mm

Apertura interior

Abatible, Oscilo-batiente, Oscilo-paralela, Plegable, Practicable

Apertura exterior

Practicable, Proyectante-deslizante

Marco

54 mm

Hoja

62 mm

Espesor perfileria ventana

1,5 mm

Espesor perfilería puerta

1,7 mm

Longitud varilla poliamida

24 mm

Ventana

Abisagrada

Puerta

Abisagrada

Aislamiento acústico

46 dB