COR 80 Hoja Oculta RPT

Ventana de aluminio de hoja oculta que aúna estética e iluminación con posibilidades térmicas y acústicas.
 

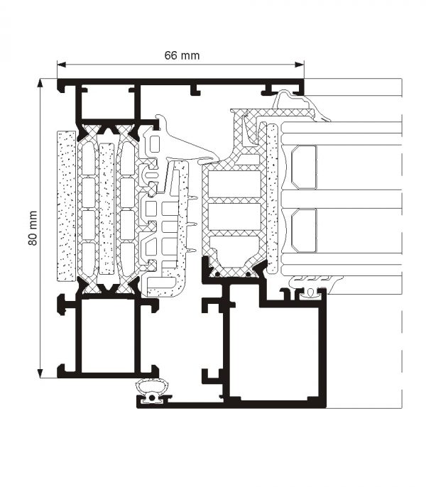
Permite esconder la hoja completamente desde el exterior, de manera que resulta imposible distinguir las zonas fijas de las que tienen apertura. Su diseño afinado solo cuenta con sesenta y seis mm vistos desde el exterior, lo que nos deja mayor superficie acristalada y, en consecuencia, mayor iluminación.
 
Sus posibilidades térmicas son inusuales alcanzando valores desde 0,8 W/m² merced a la ruptura de puente térmico compuesta por poliamidas tubulares de cuarenta y cinco mm de profundidad.
 
Su capacidad de acristalamiento es de cincuenta mm, lo que nos deja instalar vidrios triples de grandes posibilidades tanto térmicas como acústicas.
 
Esta ventana permite mitigar el estruendo exterior hasta cuarenta y seis decibelios.
 

Siguiendo la estética minimalista, incorpora la posibilidad de elegir la manilla Arch Invisible y herraje con bisagras ocultas. Para asegurar la máxima protección en frente de los intentos de hurto, deja introducir herraje de seguridad Evo Security.

INFORMACIÓN ADICIONAL

Información adicional

Acristalamiento

50 mm

Apertura interior

Abatible, Oscilo-batiente, Practicable

Marco

80 mm

Hoja

80 mm

Longitud varilla poliamida

45 mm

Aislamiento acústico

46 dB