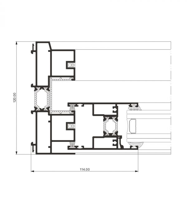
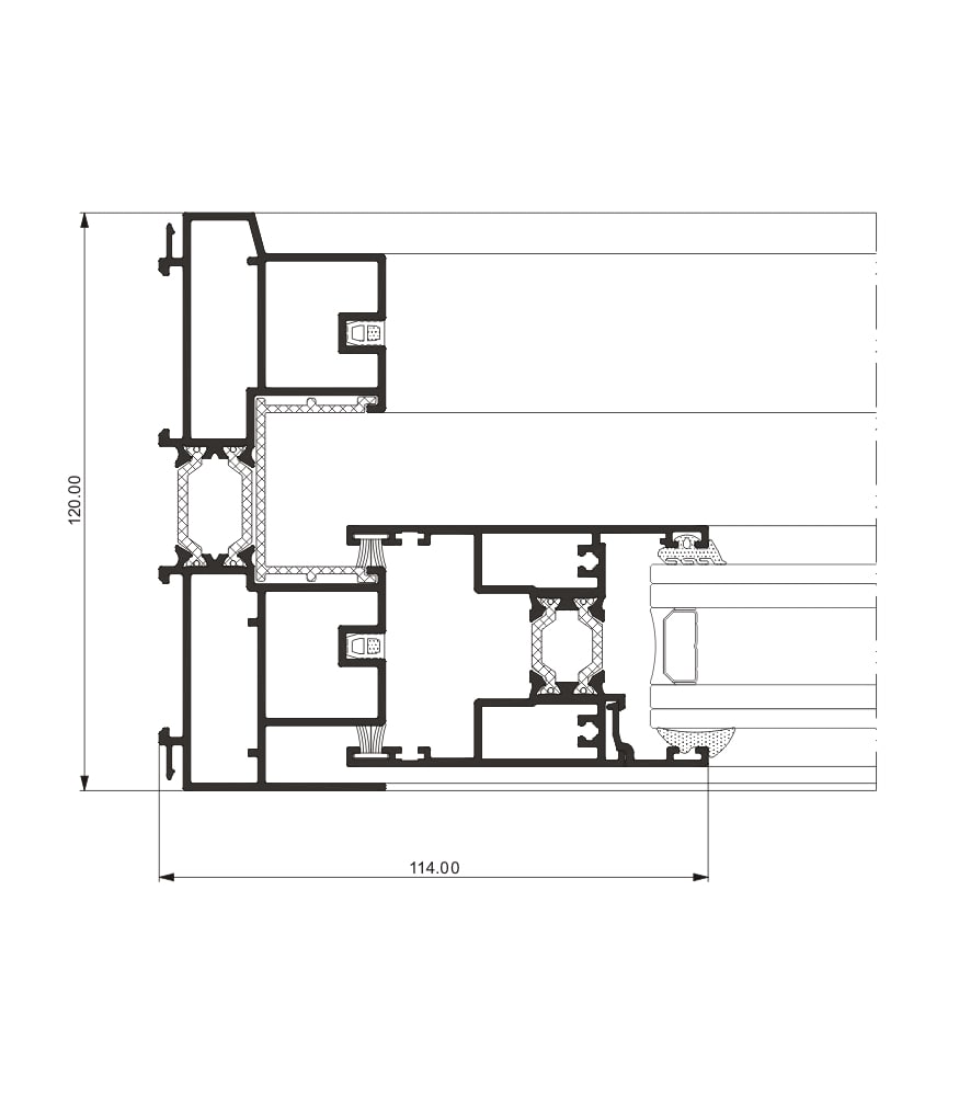
4700 Corredera RPT

Sistema de ventanas y puertas correderas de estética recta que incorpora un nudo central minimalista de tan solo 47 mm de sección vista.
 
Permite maximizar la capacidad de acristalamiento hasta los 34 mm aumentando las prestaciones térmicas y acústicas.
 
Sus hojas de hasta 280 kg de peso permiten unas dimensiones máximas por hoja de 2500 mm ancho x 3000 mm de alto.

INFORMACIÓN ADICIONAL

Información adicional

Acristalamiento

34 mm

Posibilidades de apertura

1 hoja + 1 fijo, Corredera de 2 hojas, Corredera de 3 hojas, Corredera de 4 hojas, Corredera de 6 hojas, Galandage 1 hoja, Galandage 2 hojas, Galandage 4 hojas, Monocarril, Tricarril

Marco

115 mm, 120 mm

Hoja

50 mm

Espesor de perfilería balconera

1,5 mm

Longitud varilla poliamida

20 mm, 25 mm

Aislamiento acústico

40 dB

Acabados

Posibilidad bicolor
Lacado colores (RAL, moteados y rugosos)
Lacado imitación madera
Lacado antibacteriano
Anodizado