4200 Corredera RPT

Ventana corredera con ruptura de puente térmico polivalente con múltiples marcos perimetrales y posibilidad de hojas a testa o bien perimetrales.

 

Presenta opción estética en hojas curva o bien recta.

 

En su versión de hojas a testa rectas se incluye la solución cuatro mil doscientos Corredera GALANDAGE: desarrollada para permitir una apertura integral del hueco al esconder completamente las hojas en la cámara del muro de obra. Se logra de este modo una superficie de apertura del cien por ciento.

 

Esta opción GALANDAGE presenta marco monocarril y bicarril, dejando de esta manera balconeras de 1, 2 y cuatro hojas ocultas.

 

También deja la integración de una hoja paralelamente oculta del sistema de protección solar Tamiz.

INFORMACIÓN ADICIONAL

Información adicional

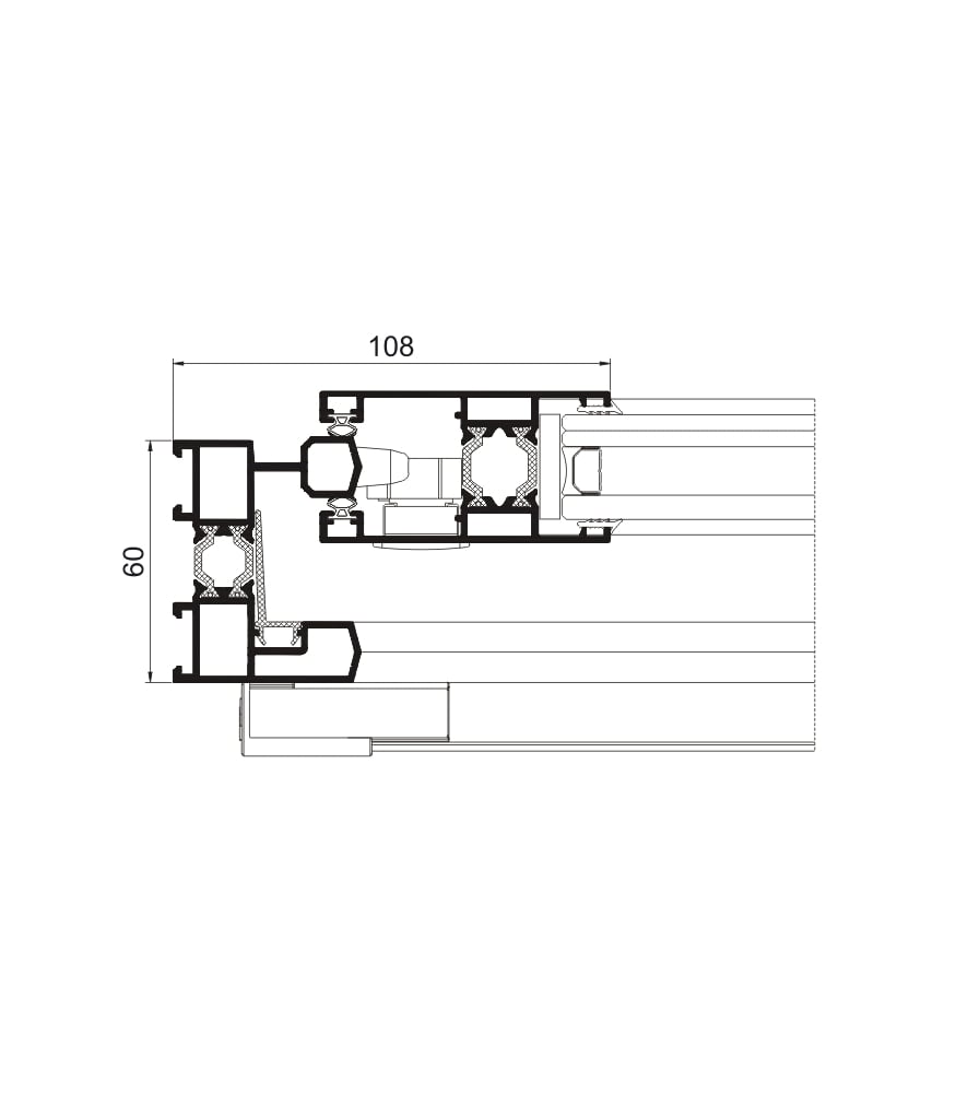
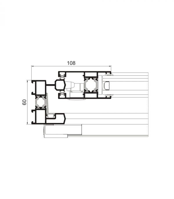
Acristalamiento

26 mm

Posibilidades de apertura

Bicarril, Bicarril de 1 hoja, Bicarril de 2 hojas, Bicarril de 4 hojas, Corredera de 2 hojas, Corredera de 3 hojas, Corredera de 4 hojas, Corredera de 6 hojas, Galange, Tricarril

Marco

60 mm, 65 mm, 67 mm, 80 mm, Tricarril 106, Tricarril 126 mm

Hoja

33 mm, 37 mm

Espesor perfileria ventana

1,5 mm

Longitud varilla poliamida

14,6 mm, 15 mm, 16 mm, 17 mm, 18 mm, 19 mm, 20 mm

Aislamiento acústico

39 dB

Acabados

Posibilidad bicolor
Lacado colores (RAL, moteados y rugosos)
Lacado imitación madera
Lacado antibacteriano
Anodizado