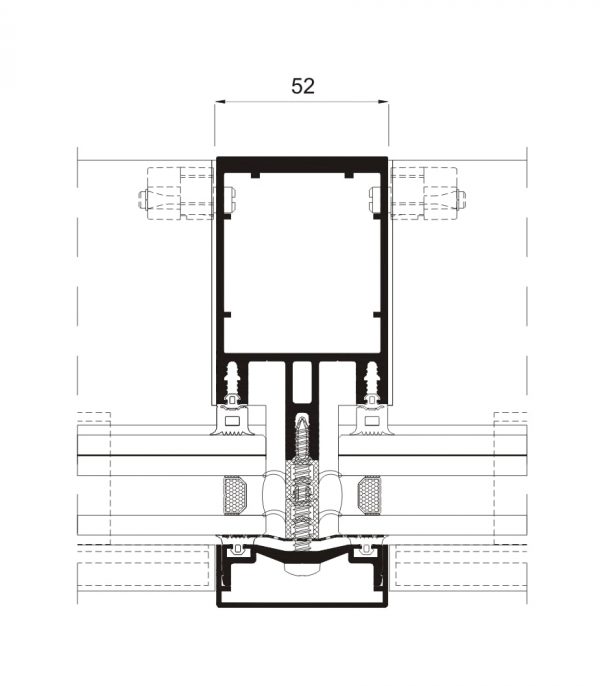
Fachada TP 52

» Amplia gama de montantes (16 a 230 mm) y travesaños (22,5 a 205,5)
 
» Sección vista interior de 52 mm
 

» Múltiples uniones mecánicas de los perfiles que posibilitan fachadas en vertical, con inclinación, poligonales y modulaciones con vidrios de gran tamaño y peso.
 

» Montantes y travesaños enrasados y a distintos niveles que permiten desagües en cascada garantizando total estanqueidad, drenaje y evacuación.
 

» Elementos de estanqueidad: pipetas de drenaje, gomas seccionables, piezas de estanqueidad y ángulos vulcanizados.
 

» Fijación de vidrio con preso continuo atornillado a montantes y travesaños oculto por tapete embellecedora.

» Excelentes prestaciones térmicas y acústicas.

INFORMACIÓN ADICIONAL

Información adicional

Acristalamiento

64 mm

Posibilidades de apertura

Oscilo-batiente, Practicable oculta, Proyectante horizontal oculta, Proyectante paralela oculta

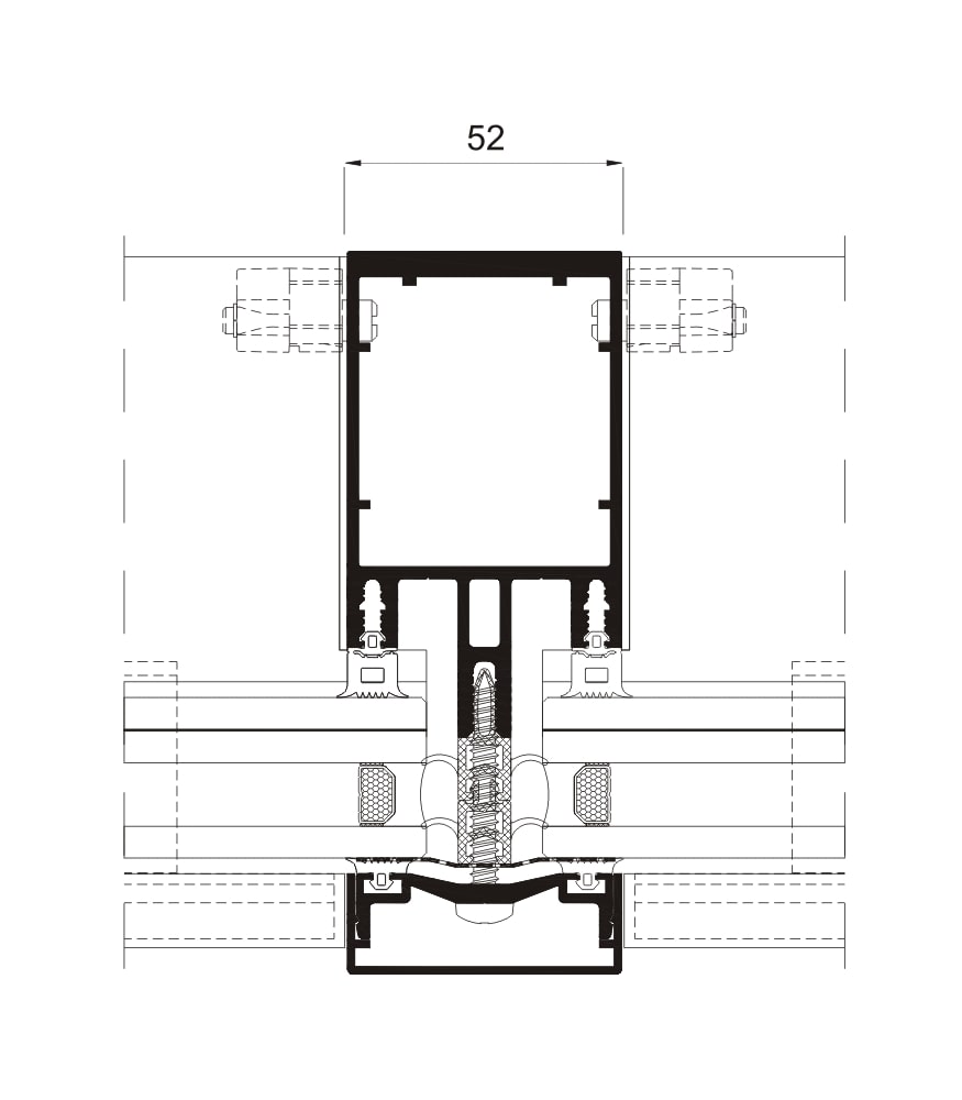
Secciones

Montante 52 mm, Travesaño 2,1 mm

Rotura de puente térmico

12 – 66 mm