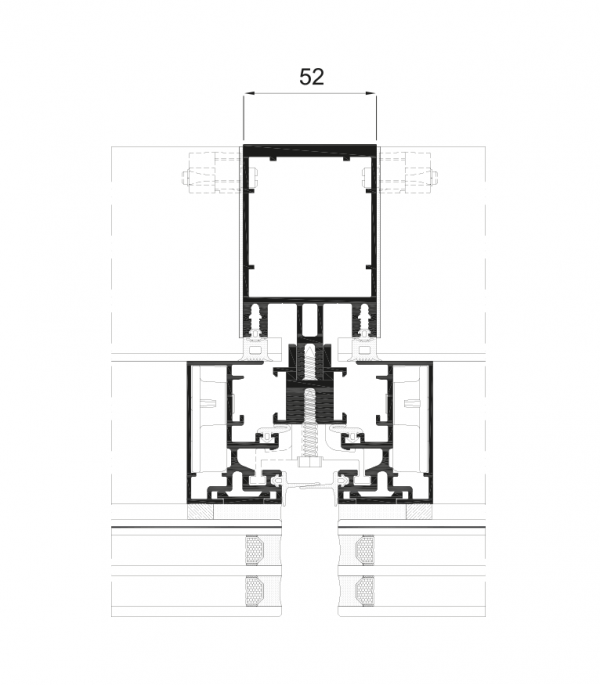
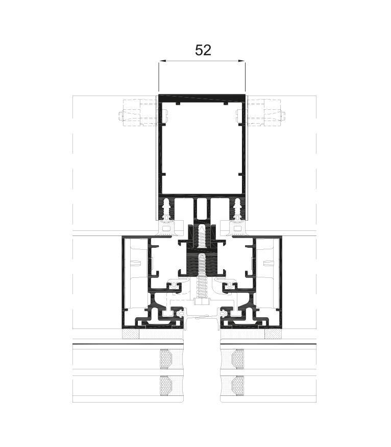
Fachada ST 52

» Amplia gama de montantes (16 a 230 mm) y travesaños (22,5 a 205,5)

 
» Sección vista interior de 52 mm
 

» Múltiples uniones mecánicas de los perfiles que posibilitan fachadas en vertical, con inclinación, poligonales y modulaciones con vidrios de gran tamaño y peso.
 

» Montantes y travesaños enrasados y a distintos niveles que permiten desagües en cascada garantizando total estanqueidad, drenaje y evacuación.

 

» Elementos de estanqueidad: pipetas de drenaje, gomas seccionables, piezas de estanqueidad y ángulos vulcanizados.

 

» Vidrio pegado al bastidor de aluminio que se une a la estructura mediante grapas.

 

» Estética similar fija / aperturas

 

» Solo vidrio visto. Estanqueidad junta EPDM perimetral.

INFORMACIÓN ADICIONAL

Información adicional

Acristalamiento

38 mm

Posibilidades de apertura

Proyectante oculta

Secciones

Montante 52 mm, Travesaño 52 mm

Espesor perfilería

Montante 1 mm, Montante 2 mm, Montante 3 mm, Travesaño 1 mm, Travesaño 2 mm

Acabados

Lacado / Anodizado