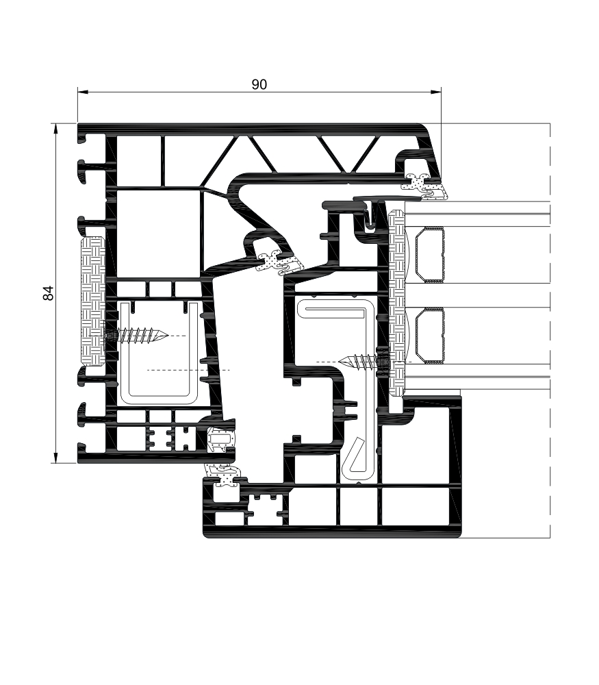
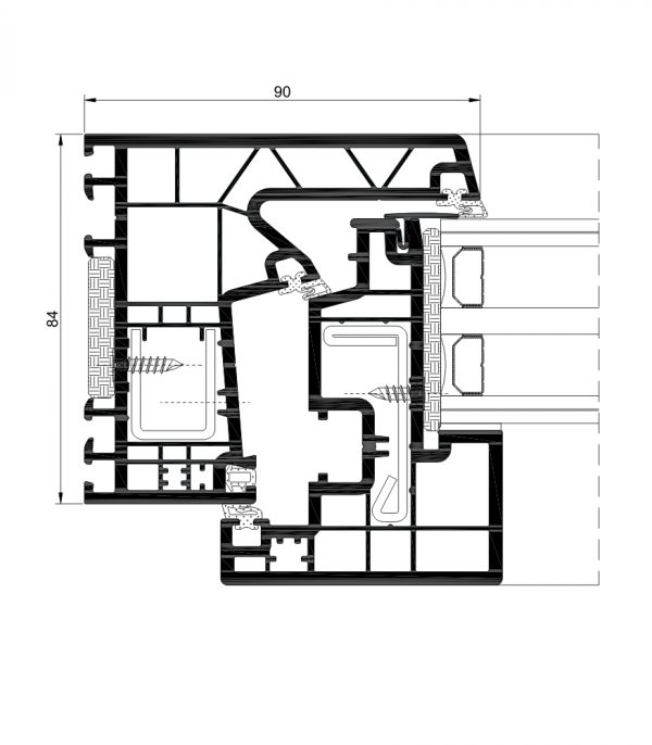
A 84 Hoja oculta Passivhaus
Ventana de pvc de hoja oculta con certificación passivhaus que auna estética y luminosidad con prestaciones térmicas y acústicas.

 

Permite ocultar la hoja totalmente desde el exterior, de forma que resulta imposible distinguir las zonas fijas de las que tienen apertura.
 
Su diseño estilizado solo cuenta con 90 mm vistos desde el exterior, lo que nos permite mayor superficie acristalada y por lo tanto mayor luminosidad.

Sus prestaciones térmicas son excepcionales alcanzando valores desde 0,71 W/m²
INFORMACIÓN ADICIONAL

Información adicional

Acristalamiento

46,5 mm

Apertura interior

Abatible, Oscilo batiente de 1 y 2 hojas, Practicable de 1 y 2 hojas.

Marco

84 mm

Hoja

84 mm

Aislamiento acústico

46 dB

Acabados

Bicolor, Blanco, Color, Imitacion madera