Cor Vision Plus Corredera RPT

Ventana corredera minimalista con ruptura de puente térmico en especial indicada para grandes dimensiones que deja la máxima iluminación con la mínima sección vista de aluminio, que permite cubrir grandes vanos de luz con una superficie acristalada del noventa y cuatro por ciento .
 
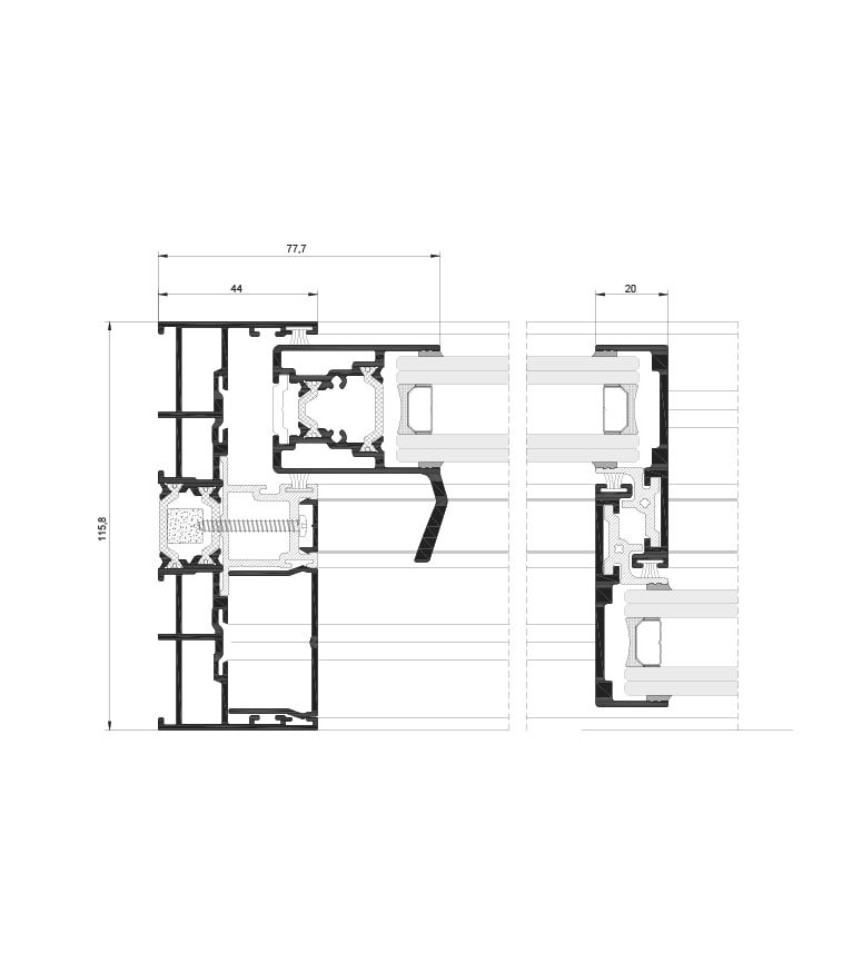
Su excepcional capacidad de acristalamiento deja alojar composiciones de vidrio de hasta cincuenta y cuatro mm que garantizan las mejores posibilidades acústicas y térmicas de un sistema de estas peculiaridades.
 

Está libre en configuraciones de hoja y fijo, dos, tres, cuatro y seis hojas y la medida máxima es de cuatro.000 mm/hoja de ancho o bien alto.
 

Presenta secciones vistas de nudo central de solo veinticinco mm y la posibilidad de embutir absolutamente marcos inferiores, superiores y laterales.
 
Incorpora la posibilidad de apertura motorizada aceptando pesos de hasta setecientos kg y apertura manual de hasta cuatrocientos kg. Además de esto deja agregar sistemas de cierre multipunto por falleba con y sin llave.
 
Los rodamientos se alojan en el marco y las hojas cuentan con un carril inox reforzado que le proporciona mayor suavidad de deslizamiento.
 
Se trata de un sistema con procedimiento de montaje tradicional con marco perimetral y hojas a testa que deja desmontar la hoja en el caso de ruptura de vidrio, desperfecto del perfil de aluminio, etc.

INFORMACIÓN ADICIONAL

Información adicional

Acristalamiento

54 mm

Posibilidades de apertura

4 carriles, Bicarril, Corredera de 2 hojas, Corredera de 4 hojas, Corredera de 6 hojas, Monocarril, Tricarril

Marco

180 mm, 278 mm tricarril

Hoja

69 mm

Espesor perfilería puerta

2,0 mm

Longitud varilla poliamida

18 mm, 19 mm, 20 mm, 21 mm, 22 mm, 23 mm, 24 mm, 25 mm, 26 mm, 27 mm, 28 mm, 29 mm, 30 mm, 31 mm, 32 mm, 33 mm, 34 mm, 35 mm, 36 mm, 37 mm, 38 mm, 39 mm, 40 mm

Aislamiento acústico

43 dB

Acabado

Posibilidad bicolor
Lacado colores (RAL, moteados y rugosos)
Lacado imitación madera
Lacado antibacteriano
Anodizado