4500 Corredera Elevable RPT

Puerta corredera de aluminio con ruptura de puente térmico que permite estética achaflanada o bien curva en hojas y junquillos.
 
Existe en 2 versiones:
 
4500 corredera elevable que fundamenta su funcionamiento en un sistema en el que las hojas se montan con un mecanismo que deja la elevación de exactamente la misma en la maniobra de apertura y el descenso en la de cierre, de forma que la puerta cerrada descansa sobre juntas de estanquidad longitudinales inferiores y superiores produciéndose su enclavamiento en cualquier situación.
Posibilidad de encuentros de hojas en esquina a 90º sin parteluces.
 

En la configuración de fijo y hoja, el carril de la zona fija continúa escondo.
 

4500 corredera en línea (no elevable) que deja efectuar correderas económicas de enormes dimensiones.
 

Presenta configuraciones de hoja+fijo, dos hojas, fijo+hoja+fijo, dos hojas+2 fijos y cuatro hojas.
 

El carril por el que se deslizan las hojas es de acero inoxidable para eludir el desgaste de la pieza.
Posibilidad de marco a testa o bien perimetral.
 

Incorpora la nueva tipología GALANDAGE desarrollada para permitir una apertura integral del hueco al esconder plenamente las hojas en la cámara del muro de obra. Se logra de este modo una superficie de apertura del cien por ciento.

INFORMACIÓN ADICIONAL

Información adicional

Acristalamiento

38 mm

Posibilidades de apertura

1 hoja + 1 fijo, 90º sin parteluz, Corredera de 2 hojas, Corredera de 3 hojas, Corredera de 4 hojas, Corredera de 6 hojas, Galandage 1 hoja, Galandage 2 hojas, Monocarril, Tricarril

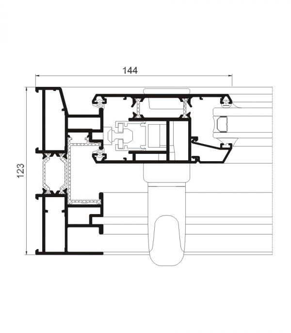
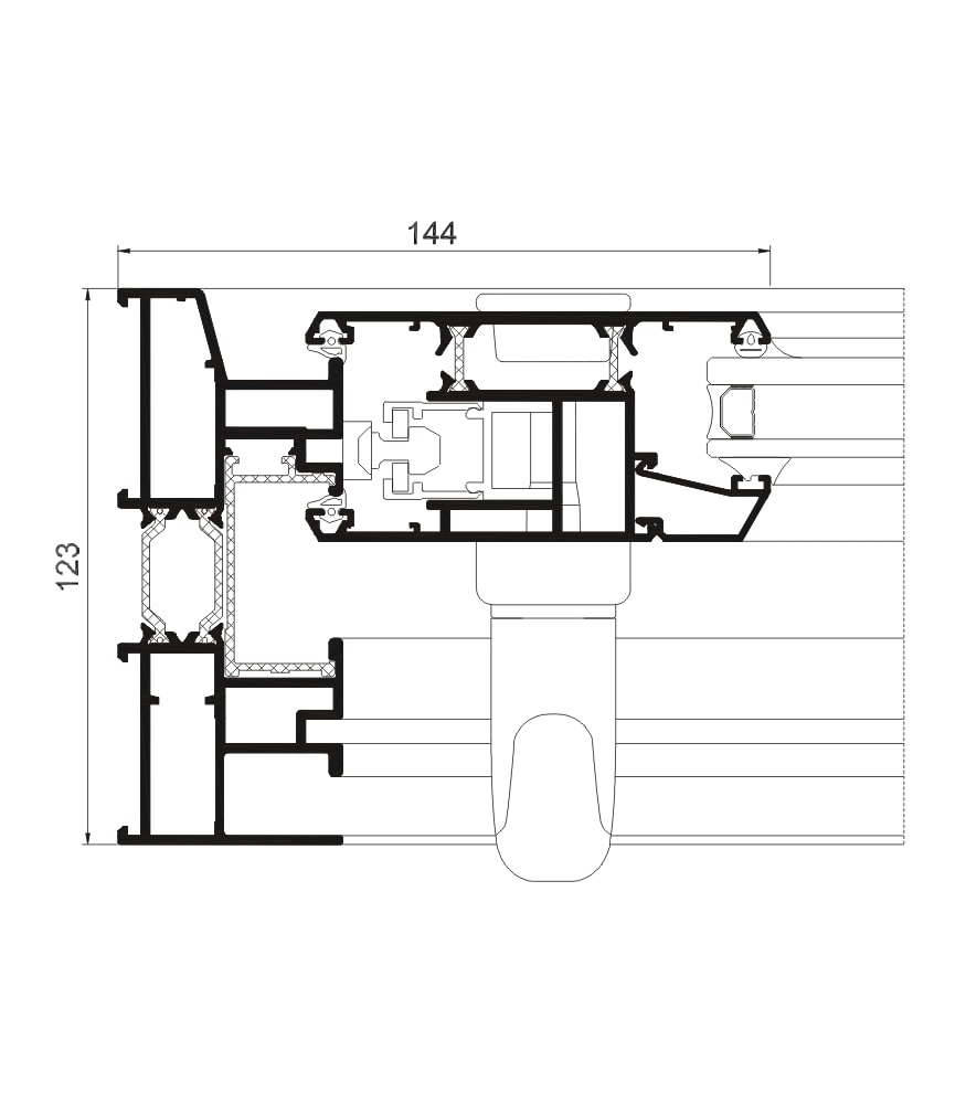
Marco

100 mm, 123 mm, 127 mm, 185 mm Tricarril

Hoja

51 mm

Espesor perfilería puerta

2,0 mm

Longitud varilla poliamida

14,6 mm, 24 mm, 30 mm

Especificaciones

Elevable 24 mm y 14,6 mm
En línea 30 mm y 14,6 mm

Aislamiento acústico

42 dB

Acabados

Bicolor
Lacado
Anodizado