Techo móvil

» Sistema de techo móvil corredero y automático.
 

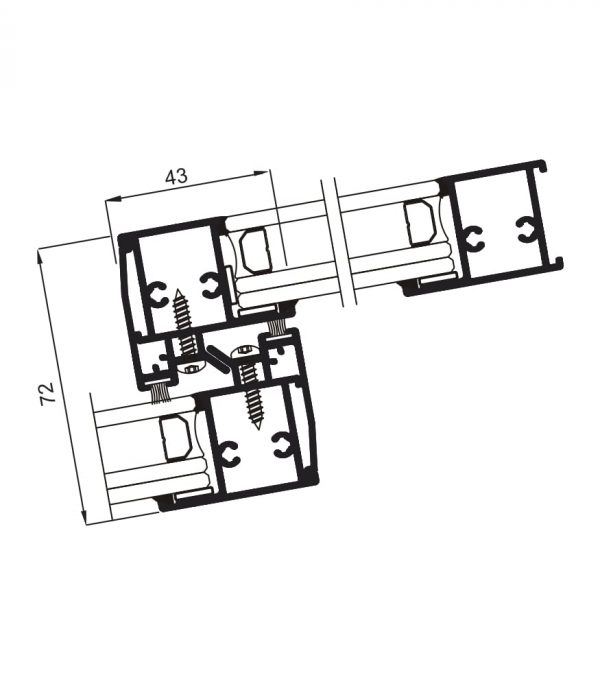
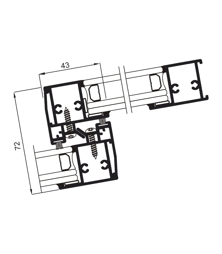
» Capacidad de acristalamiento de 24 mm que permite integrar vidrios de alta resistencia lumínica para evitar el efecto invernadero.
 

» Estética, robustez, comodidad y prestaciones.

 

» Apertura máxima 66% de superficie: Ventilación y total entrada de luz cenital.

 

» Perfiles complementarios para facilitar recogida

INFORMACIÓN ADICIONAL

Información adicional

Pendiente

Perfilería dispuesta para inclinación de 8,5º

Máxima luz cubierta

3100 mm

Mínima luz cubierta

3100 mm

Anchura de luz

Ilimitada uniendo módulos

Acristalamiento lucernario

Policarbonato celular 25 mm, Panel sandwich 24 mm, Vidrio 24 mm

Posibilidades de apertura

Corredera de 1 hoja, Corredera de 2 hojas

Marco

133 mm

Hoja

28 mm

Espesor perfilería

Hojas 1,5 mm

Acabados

Lacado / Anodizado

PRODUCTOS RELACIONADOS